
This is the existing view from the street
This is the first post for this blog. I’ve recently received my building permit and this blog is here to document the process of adding a second story. This is a tiny house and I am not doubling the square footage with this addition but I think I might lose my reputation as a tiny house.

On this blog I will show what I go through to achieve my goal. It is going to be a long process so subscribe to this blog and enjoy the ride. Please comment on things that you like or don’t like and help to refine this site. I want this to be interesting for everyone and for all of us to get something out of it.
THE EXISTING FIRST FLOOR PLAN

First Floor
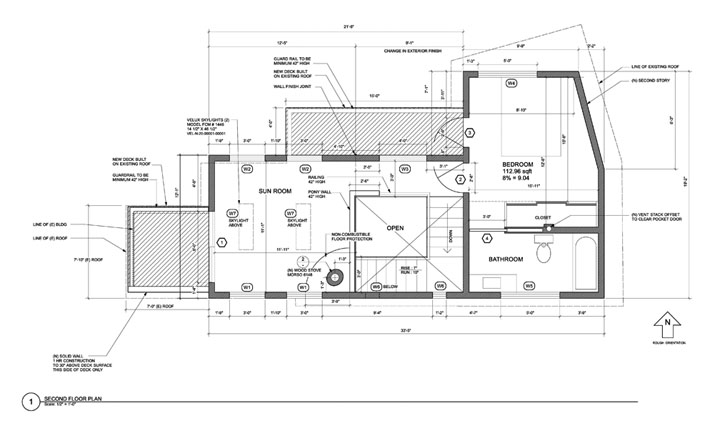
THE PROPOSED SECOND FLOOR ADDITION

Proposed Second Floor Addition